T2 - draguignan - 41m²

❌ Cet appartement est actuellement indisponible à la location.

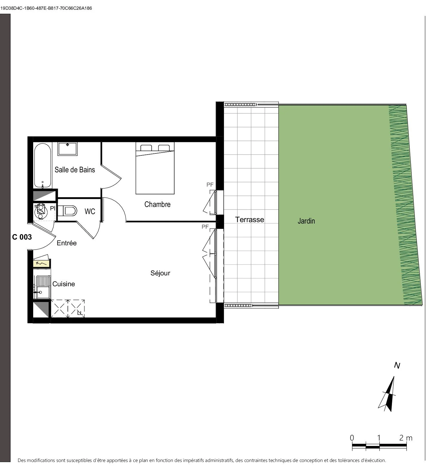
Beau T2 dans une résidence récente

  • 2 Pièces · 41 m² · Draguignan (83300)

  • Loyer de 650 € (charges comprises)

  • Appartement situé au RDC (rez-de-chaussée).


Dans une résidence récente située à Draguignan (83300), beau T2 de 41 m² composé de la manière suivante :

  • Un séjour cuisine semi équipée de 23 m²

  • Une salle de bain de 4.50 m²

  • Un WC

  • Une terrasse de 14 m²

  • Un jardin de 46 m²

Nous contacter

Nous contacter